Vente – Appartement – 1 pièce – Saint-Jean-de-Monts (85160)
Vente – Appartement – 1 pièce – Saint-Jean-de-Monts (85160)
Réf : 1361
Description
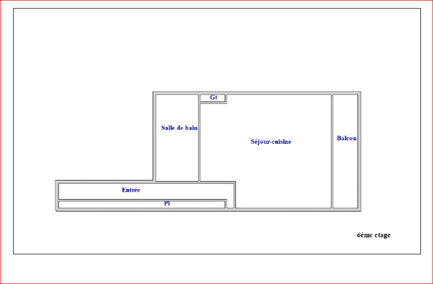
Vue imprenable sur l'océan pour ce studio rénové de 25,73 m2 carrez (30.68 m2 habitables). Belle cuisine aménagée et équipée ouverte sur pièce de vie avec balcon et loggia, couloir bénéficiant de rangements, salle de bains modernisée avec wc. Atout supplémentaire : place de parking privative. Copropriété de 132 lots. Le montant moyen annuel de la quote-part, à la charge du vendeur, du budget prévisionnel correspondant aux dépenses courantes : 470 euros (parking inclus). Honoraires d'Agence Inclus: 5,91 % TTC à la charge de l'acquéreur. Prix net vendeur: 110.000 euros. Montant estimé des dépenses annuelles d'énergie pour un usage standard entre 614 et 856 euros (Prix moyen des énergies indexés sur le tarif 2021-22-23) Logement à consommation énergétique excessive.Les informations sur les risques auxquels ce bien est exposé sont disponibles sur le site : www.georisques.gouv.fr
Ce bien m'intéresse !
Nous contacter
ou
Être contacté
Nos coordonnées
35 Esplanade de la Mer
85160
Saint-Jean-de-Monts
Tél : 02 28 11 21 21
Caractéristiques
- Surface habitable30.68 m2
- Nombre de pièces1
- Nombre de chambres-
- Superficie du terrain-
- Type de chauffageElectrique
- Salle de bain1
- Salle de douche-
- Terrasse-
- BalconOui
- ParkingOui
- DPE511
- GES20
stdClass Object
(
[id] => 807
[post_id] =>
[hektor_id] => 807
[date_enr] => 2026-03-09
[date_maj] => 2026-03-12
[mandate_key] => 0
[reference_client] => immovendeenne
[titre] => Studio face océan ! avec Parking
[reference] => 1361
[numero_mandat] => 1361
[type_offre] => Vente
[type_offre_code] => 0
[agence] => Pierre-Olivier DESMARES
[agence_logo] =>
[agence_location] =>
[agence_cp] =>
[agence_latitude] =>
[agence_longitude] =>
[agence_ville] =>
[cle_agence] => groupe-cotedelumiereimmobilier_5
[telephone] => 06 11 70 13 57
[email] => podesmares@reseauvendeen.immo
[negociateur] =>
[tel_negociateur] =>
[photo_negociateur] =>
[corps] => Vue imprenable sur l'océan pour ce studio rénové de 25,73 m2 carrez (30.68 m2 habitables). Belle cuisine aménagée et équipée ouverte sur pièce de vie avec balcon et loggia, couloir bénéficiant de rangements, salle de bains modernisée avec wc. Atout supplémentaire : place de parking privative. Copropriété de 132 lots. Le montant moyen annuel de la quote-part, à la charge du vendeur, du budget prévisionnel correspondant aux dépenses courantes : 470 euros (parking inclus). Honoraires d'Agence Inclus: 5,91 % TTC à la charge de l'acquéreur. Prix net vendeur: 110.000 euros. Montant estimé des dépenses annuelles d'énergie pour un usage standard entre 614 et 856 euros (Prix moyen des énergies indexés sur le tarif 2021-22-23) Logement à consommation énergétique excessive.Les informations sur les risques auxquels ce bien est exposé sont disponibles sur le site : www.georisques.gouv.fr - Annonce rédigée et publiée par un Agent Mandataire -
[corps_impression] => Vue imprenable sur l'océan pour ce studio rénové de 25,73 m2 carrez (30.68 m2 habitables). Belle cuisine aménagée et équipée ouverte sur pièce de vie avec balcon et loggia, couloir bénéficiant de rangements, salle de bains modernisée avec wc. Atout supplémentaire : place de parking privative. Copropriété de 132 lots. Le montant moyen annuel de la quote-part, à la charge du vendeur, du budget prévisionnel correspondant aux dépenses courantes : 470 euros (parking inclus). Honoraires d'Agence Inclus: 5,91 % TTC à la charge de l'acquéreur. Prix net vendeur: 110.000 euros. Montant estimé des dépenses annuelles d'énergie pour un usage standard entre 614 et 856 euros (Prix moyen des énergies indexés sur le tarif 2021-22-23) Logement à consommation énergétique excessive.Les informations sur les risques auxquels ce bien est exposé sont disponibles sur le site : www.georisques.gouv.fr
[prix] => 116500
[prix_semaine_basse] =>
[prix_quinzaine_basse] =>
[prix_mois_basse] =>
[prix_semaine_haute] =>
[prix_quinzaine_haute] =>
[prix_mois_haute] =>
[charges] =>
[honoraires] => 6500
[honoraires_acquereur] =>
[honoraires_mandant] =>
[prixnetvendeur] => 110000
[foncier] => 626
[url] => https://www.reseauvendeen.immo/vente/85-vendee/3-st-jean-de-monts/2-appartement/t1/807-studio-face-ocean-avec-parking/
[type_mandat] => SIMPLE
[type_bien] => Appartement
[type_bien_code] => 2
[surface_habitable] => 30.68
[surface_terrain] =>
[nb_pieces] => 1
[chambres] =>
[couchages] =>
[nb_etages] => 6
[etage] => 6
[sdb] => 1
[sde] =>
[wc] => 1
[cuisine] => Americaine -Equipee
[chauffage] => CONVECTEUR
[energie_chauffage] => ELECTRIQUE
[format_chauffage] => INDIVIDUEL
[parking] => 1
[piscine] => 0
[balcon] => 1
[terrasse] =>
[exposition] => SUD-OUEST
[environnement] =>
[vue] =>
[prestige] => 0
[cons_energie] => 511
[class_energie] => G
[emission_gaz] => 20
[class_emission_gaz] => C
[pays] => France
[ville] => Saint-Jean-de-Monts
[cp] => 85160
[departement] => 85
[coup_de_coeur] => 0
[visite_virtuelle] =>
[copropriete_lot] =>
[copropriete_nb_lot] =>
[copropriete_quote_part] =>
[copropriete_plan_sauvegarde] =>
[copropriete_statut_syndical] =>
[meuble] => 0
[constructible] =>
[reference_programme] =>
[status] => 2
[slug_ville] => saint-jean-de-monts
[slug_type_bien] => appartement
[_thumbnail_id] => 1897930
[photos] => ["https://groupe-cotedelumiereimmobilier.staticlbi.com/wa/images/biens/5/9375084629cd055e6b819053bc9714de/photo_e873407c9d237f566d912374ef100091.jpg","https://groupe-cotedelumiereimmobilier.staticlbi.com/wa/images/biens/5/9375084629cd055e6b819053bc9714de/photo_b5d8e2056dd5ce27086fcb40be884db2.png","https://groupe-cotedelumiereimmobilier.staticlbi.com/wa/images/biens/5/9375084629cd055e6b819053bc9714de/photo_694c9beb7d07844869937c205c4620ca.jpg","https://groupe-cotedelumiereimmobilier.staticlbi.com/wa/images/biens/5/9375084629cd055e6b819053bc9714de/photo_6de83414ca533fa7fb9bd89a9e1d0b2d.jpg","https://groupe-cotedelumiereimmobilier.staticlbi.com/wa/images/biens/5/9375084629cd055e6b819053bc9714de/photo_9f3cdc56ef962536b6bf87fbc97edcf1.jpg","https://groupe-cotedelumiereimmobilier.staticlbi.com/wa/images/biens/5/9375084629cd055e6b819053bc9714de/photo_16f81bf7eff01c412956e29c626a8b83.jpg","https://groupe-cotedelumiereimmobilier.staticlbi.com/wa/images/biens/5/9375084629cd055e6b819053bc9714de/photo_84210a5227f5904c923a831ecd1e1230.jpg","https://groupe-cotedelumiereimmobilier.staticlbi.com/wa/images/biens/5/9375084629cd055e6b819053bc9714de/photo_83bdfe37f1b7556a2923a8783bb25eb5.jpg","https://groupe-cotedelumiereimmobilier.staticlbi.com/wa/images/biens/5/9375084629cd055e6b819053bc9714de/photo_bb4083d429adafec78f62627085bea08.jpg","https://groupe-cotedelumiereimmobilier.staticlbi.com/wa/images/biens/5/9375084629cd055e6b819053bc9714de/photo_035e859a0a23fbfc888d1784b93c3107.jpg","https://groupe-cotedelumiereimmobilier.staticlbi.com/wa/images/biens/5/9375084629cd055e6b819053bc9714de/photo_11146b7df40924dbe7543631c7c49288.jpg","https://groupe-cotedelumiereimmobilier.staticlbi.com/wa/images/biens/5/9375084629cd055e6b819053bc9714de/photo_10e571525654c0e0755ad1b7af43fd67.jpg","https://groupe-cotedelumiereimmobilier.staticlbi.com/wa/images/biens/5/9375084629cd055e6b819053bc9714de/photo_0c5667911d0bba4fb209131049cace58.jpg"]
)